Teraz RABAT na zewnętrzne systemy przesuwne: 15% z kodem MAJÓWKA

Dołącz do Newslettera SLID'UP i odbierz 5% rabatu na start!

search

Napęd do 1 prawej okiennicy SLID'UP BRA-VO z przełącznikiem

Indeks : W0002450

  • Silnik natynkowy do okiennic uchylnych
  • Sterowanie przewodowe z przełącznikiem
  • Do 1 skrzydła prostego (widok z zewnątrz)
  • Maksymalna waga skrzydła: 50 kg
  • Wyprodukowano we Francji
  • Gwarancja: 2 lata
  • Ilość: 1
Zapytaj o dostępność

Dostawa w ciągu 14 do 21 dni

2 607,60 zł Brutto Ou 3x 869.20 € sans frais
Liczba skrzydeł (widok z zewnątrz)
Wybierz konfigurację : W0002450
Ilość

Opis

Uwaga: Zestaw nie zawiera okiennic.


Silnik BRA-VO 230 V do okiennic jednoskrzydłowych.


Silnik do montażu na powierzchni, idealny do nadproży zakrzywionych lub zaokrąglonych.

Silniki BRA-VO pasują do wszystkich typów okiennic uchylnych (drewnianych, PVC, aluminiowych itp.), zarówno nowych, jak i odnowionych.


Więcej szczegółów można znaleźć w instrukcji montażu.


Specyfikacje, których należy przestrzegać:

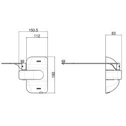
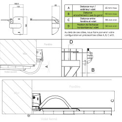
- Szerokość skrzydła: min. 40 cm / maks. 80 cm

- Maksymalna powierzchnia skrzydła: 1,6 m²

- Maksymalna waga skrzydła: 50 kg

- Szerokość ramy: 15 cm

- Maksymalna odległość między sworzniem zawiasu a krawędzią okiennicy: 40 mm


Opis:

- Kompletny zestaw, gotowy do montażu: silnik okiennic uchylnych BRA-VO jest szybki i łatwy w montażu.

- Jedno naciśnięcie przycisku i wszystkie okiennice zamykają się.

- Bezpieczny: wykrywanie przeszkód zgodnie z normą NF 26-341. W przypadku napotkania przeszkody okiennica powraca do pierwotnej pozycji.

- Elastyczne zastosowanie: sterowanie otwieraniem wszystkich lub niektórych okiennic. Możliwość zatrzymania okiennicy w pozycji półotwartej.

- Nowe lub odnowione: pasują do wszystkich typów okiennic zawiasowych, w tym tych połączonych z naszym wieloskrzydłowym kompasem W0000400.

- Produkt zaprojektowany i wyprodukowany w naszych warsztatach we Francji, testowany indywidualnie i objęty 2-letnią gwarancją.


Zawartość zestawu:

- 1 prosty silnik (widok z zewnątrz) + elektronika

- 1 ramię

- 1 szyna + zaślepki

- 1 pokrywa + zaślepki

- 1 zestaw śrub (śruby, kołki rozporowe, tuleja, przekładka)

- 1 przełącznik z 2 przyciskami

- 3 metry kabla zasilającego 220/230 V


Tabela kolorów RAL. Inne kolory są opcjonalne: skontaktuj się z nami


Opcje:

C0004750: Programowalny zegar radiowy

C0004760: Programowalny przekaźnik radiowy (podwajający zasięg)

C0004770: Programowalny pilot radiowy

C0004780: Programowalny przełącznik radiowy

C0007105BR: 1,2 m szyna prowadząca (idealna do okiennic żaluzjowych)

W0000400: Stalowe podpory do połączonych skrzydeł

Inne białe ramiona lub czarne

Zamykanie elektromagnetyczne lub elektromechaniczne

Wszystkie części zamienne do SLID'UP BRA-VO

Dokumentacja techniczna

Zaprojektowane z myślą o Tobie

Od koncepcji i projektowania, przez produkcję, aż po realizację i sprzedaż – SLID'UP by Mantion to ekspert w dziedzinie systemów przesuwnych, oferujący nowoczesne i funkcjonalne rozwiązania przesuwne dla każdego domu.

Marka

Dane techniczne

Zastosowanie Okiennice skrzydłowe
Zewnętrzny
Gwarancja B2C 2 lata
Przeznaczenie Drzwi
Czas zamknięcia 16 s
Kolor Biały
Rodzaj sterowania Sterowany przewodowo
Liczba skrzydeł (widok z zewnątrz) 1 prawe
Rodzaj wyłącznika krańcowego Dynamiczny (stop przy przeszkodzie)
Maksymalna grubość skrzydła 40 mm
Maksymalna moc 100 W
Maksymalna powierzchnia skrzydła 1.6 m²
Maksymalna waga / skrzydło 50 kg
Maksymalna szerokość / skrzydło 80 cm
Pozycja silnika Po prawej
Moment obrotowy silnika 25 Nm
Rodzaj silnika Silnik-reduktor prądu stałego
Napięcie silnika 24 V CC
Rodzaj montażu Nakładany
Ilość skrzydeł 1 prawe
Ilość silników 1
Liczba napędów na skrzydło 1
Czas otwarcia 16 s
Zakres temperatury pracy -20°C do 60°C
Wyprodukowano w Francja
Rodzaj produktu Zestaw z automatyką
Stopień ochrony IP54
Asortyment SLID'UP BRA-VO
Napięcie zasilania 230 V CA

Producent polski

SLID'UP by Mantion to marka francuskiej grupy Mantion, która od ponad 100 lat produkuje systemy przesuwne.

Wysyłane z Polski

Produkty znajdujące się w magazynie są dostarczane w zależności od dostępności od 2 dni do kilku tygodni do domu klienta. Wysyłka realizowana jest z magazynu głównego siedziby firmy Mantion Polska.

Bezpieczne płatności

Płatność online za zamówienia jest w pełni bezpieczna. 

opinie klientów